আজকে আমরা ব্যবহারিকঃ CAD এ Building এর Plan অঙ্কন করা সম্পর্কে আলোচনা করবো। যা আর্কিটেকচার ড্রাফট উইথ ক্যাড – ২ এর প্রথম পত্রের ব্যবহারিক অংশের অন্তর্গত।
Table of Contents
ব্যবহারিকঃ CAD এ Building এর Plan অঙ্কন করা
লেয়ার ব্যবহার করে আবাসিক বাড়ির প্ল্যান অঙ্কন করা
আবাসিক বাড়ির প্ল্যান অঙ্কনের জন্য
- ড্রয়িং ইউনিট (Architectural) ও লিমিট (50′, 50′) সেট আপ করে নিতে হবে।
- প্রথমে কমান্ড লাইনে la লিখে লেয়ার বক্স এনে Alt+N চেপে প্রয়োজনীয় কতগুলো লেয়ার তৈরি করে নিতে হবে।
- লেয়ারসমূহের Color, Linetype, Lineweight, ঠিক করে নিতে হবে।
- মনে করি Wall লেয়ার এর জন্য Color Blue, Linetype continuous, Lineweight-0.4mm ঠিক করে নেয়া হল (নিচের চিত্রটিতে এটি অনুসরণ করা হয়েছে)।
- একই ভাবে Win (Window ) লেয়ার এর জন্য Color Megenta, Linetype continuous, Line weight -0.15mm, এবং Door লেয়ার এর জন্য Color 120, Linetype continuous, Lineweight-0.15mm
- Stair লেয়ার এর জন্য Color – 150, Linetype continuous ( & Dashed), Lineweight-0.18mm, Ges Text 691757 45 Gas Color-Red, Linetype continuous, Lineweight-0.30mm |
- ওয়াল লেয়ারটিকে সিলেক্ট করে লেয়ার ম্যনেজার বক্সের টিক চিহ্নে ক্লিক করলে এটি কারেন্ট লেয়ার হবে।
- লাইন কমাণ্ডের সাহায্যে F8 ক্লিক করে অর্থো অন করে একটি লাইন টানতে হবে।
Command: L ! অথবা, ড্রয়িং টুল বারের আইকন _ এ ক্লিক করে,
Specify Start Point: 00 লিখে এন্টার বা ড্রয়িং এরিয়া এর যে কোনো বিন্দুতে ক্লিক, Specify Next Point: 30-0″ – (ডানে মাউস সরিয়ে নিয়ে)\Specify Next Point: 30-0″ (উপরে মাউস সরিয়ে নিয়ে)
Specify Next Point: 30-0″ – (বায়ে মাউস সরিয়ে নিয়ে)Specify Next Point:c,
- অফসেট করে ৫% দেয়াল অঙ্কন,
Command: 0+
Specify offset distance or [ through / Erase/ Layer ] <> : 5
Specify point on side to offset or [ Exit Multiple/Undo]: সিলেক্ট করা রেখার ভিতর দিকে ক্লিক করতে হবে।
এভাবে চারটি রেখার অফসেট করতে হবে।
- এবার বেডরুম অঞ্চলের জন্য,
Command: o +
Specify offset distance or [ through / Erase / Layer] <O>: 11-3″ লিখে এন্টার
Specify point on side to offset or [ Exit Multiple / Undo]: সিলেক্ট করা রেখার ভিতর দিকে ক্লিক করতে হবে।
- দুইদিকে একই মাপ বিধায় পরপর দুইটি কোণাকুণি রেখা সিলেক্ট করে ভিতর দিকে ক্লিক করতে হবে। পরে অফসেট করে ৫” দেয়াল অঙ্কন করতে হবে।
- লিভিং রুমের জন্য একই ভাবে নিচের দিকে 14-2″ ও বাম দিকে 12-1″ করে অফসেট করতে হবে। পরে অফসেট করে 5″ দেয়াল অঙ্কন করতে হবে।
- এখন ট্রিম কমান্ড দিয়ে অপ্রয়োজনীয় অংশ কেটে ফেলে চিত্রানুরূপ অঙ্কন করতে হবে।
ট্রিম কমান্ড,
Command: trl + (দুইবার এন্টার চাপতে হবে) বা মডিফাই টুল বারের আইকন এ ক্লিক করে এন্টার করতে হবে।
Select object: বস্তুটির যে অপ্রয়োজনীয় অংশ কাটতে বা ছাটতে হবে সেই অংশে ক্লিক।
- এবার বাথরুমের জন্য 6-3″ ও 5′ দেয়াল কিচেন রুমের জন্য 7-1″ ও 5″ দেয়াল অফসেট করে বেড রুমের বাম পাশে। অঙ্কন করতে হবে। (চিত্র)।
- উপর থেকে নিচ দিকে বাথরুমের জন্য 4-7″ ও 5″ দেয়াল কিচেন রুম জন্য 7′-6″ ও 5″ দেয়াল অফসেট করে অঙ্কন করতে হবে। কিচেনের শেষ প্রান্তের রেখায় এক্সটেন্ড করে নিতে হবে।
Command; ex <! ! (দুইবার এন্টার চাপতে হবে) বা মডিফাই টুল বারের আইকন E এ ক্লিক করে এন্টার করতে হবে।
Select object: রেখাটির সেই নিচের অংশের উপর ক্লিক।
- বাড়তি অংশটুকু ট্রিম বা ডিলেট করে মুছে ফেলতে হবে।
- বারান্দা অংকনের জন্য উপর থেকে নিচ দিকে 7- 5 সেট করে, এবং রা 349 5 সেট করতে হবে, দুই পাশের বাড়তি অংশ ট্রিম করতে হবে ।
এখন কিচেনের দরজা বা কোণার অংশকে কাটার জন্যন
Command: cha বা মকাই টুল বাতেন এ ক্লিক করতে হবে।
Select first line or [Undo/Folyline/ Distsoce/Angle/Trim/mEthod/Multiple]:d
Specify first chamfer distance <02-0″> 2-11″ লিখে এন্টার ।
Specify second chamfer distance <0-0″> 2-11 ।
Select first line or [Undo/Polyline/ Distance/Angle/Trim/mEthod/Multiple]:
Select second line or shift-select to appl corner. অনুভূমিক রেখাটিকে সিলেক্ট।
- কোনাকুনি রেখাটিকে ৫” লেয়ার অফসেট করতে হবে করতেন, এবং ঢাকার সুরত্ব নিত্রে কোনাকুনি মিশাতে হবে।
- বারান্দার নিচের রেখাদয়কে লিভিং রুম পর্যন্ত এক্সটেন্ত করতে হবে।
- বেড ও ড্রয়িং রুমের দরজার জন্য 40 বারান্দা, রান্নাঘর ও টয়লেটের দরজার জন্য 30 অফসেট করতে হবে।
- অফসেটকৃত রেখার জন্য ট্রিম করে দরজা ও বারান্দার ফাকা অংশ করতে হবে।
- এবার দরজার লেয়ারকে কারেন্ট লেয়ার করে দরজা আঁকতে হয়।
- দরজার চৌকাঠ অংকনের জন্য দেয়ালের এক পাশে ফাকা অংশে a বিন্দু থেকে লাইন কমান্ডের সাহায্যে ab, be, od, de, ef, রেখা 24,34, 14, 2 মাপে অংকন করতে হবে)।
- মিরর কমান্ডের সাহায্যে দরজার চৌকাঠটির উলটা প্রতিবম্ব দরজার ফাকা অংশে অপর পাশে আঁকতে হবে। একই ভাবে লাইন দিয়ে আকা যায়।
- চৌকাঠ গুলোকে 40″ ও 30″ দুটি দরজার দুই পাশে কপি করে বসাতে হবে।
- পালা অংকনের জন্য চৌকাঠটির de রেখা বরাবর সরল রেখা আঁকতে হবে। রেখা টিকে 11/2″ অফসেট করে আরেকটি রেখা আঁকতে হয়।
- এবার de রেখার e বিন্দুকে কেন্দ্র করে চৌকাঠটির অপর পাশে e বিন্দু বরাবর বিন্দু পর্যন্ত ব্যাসার্ধ দিয়ে আঁকতে হয়।
- এবার ট্রিম কমান্ড দিয়ে অপ্রয়োজনীয় অংশ কেতে ফেলে চিত্রানুরুপ দরজার সিম্বল অংকন করতে হবে।
- দুই মাপের দরজার জন্য দুটি সিম্বল তৈরী করে মাপ অনুযায়ী কপি করে বসাতে হবে।
- প্রয়োজনে রটেট বা মিরর করে দরজার অবস্থান ঘুরিয়ে দিতে হবে।
- কলাম অংকনের জন্য কলাম লেয়ার কারেন্ট লেয়ার করে রোটেট কমান্ডের সাহায্যে 10″ x 10″ বক্স তৈরী করে নিতে হবে।
Command: res বা ড্র টুলবারের আইকনে এ ক্লিক করতে হবে।
Specify first corner point or [Chamfer Elevation/ Fillet Thickness/ Width]: 0,0 ড্রয়িং এরিয়ার যে কোন একটি বিন্দুকে ক্লিক,
Specify other corner point [Area/ Dimen sion/Rotation]: @10″, 10″, 10″ ×10″ একটি বক্স তৈরি হবে ।
- কক্ষে এই কলাম বসানোর জন্য কপি কমান্ডের সাহায্যে চিত্রানুরুপ বসাতে হবে
- কক্ষের মধ্যের অপ্রয়োজনীয় রেখা ট্রিম করে ফেলতে হবে ।
জানালার অবস্থান নির্ণয়ে কলামের অবস্থান নির্ণয় প্রয়োজন বিধায় ট্রিম করে দেয়া হল ।
- রেখার উভয় পাশে 30° মাপে অফসেট করতে হবে।
- একই ভাবে বেডরুমের জন্য দেয়ালের মধ্য বিন্দুতে একটি রেখা ও রেখার উভয় পাশে 30° মাপে অফসেট করতে হবে । কিচেন ও টয়লেটে যথাক্রমে 20 ও 40 জানালার জন্য অফসেট করতে হবে।
- দরজার অনুরুপ অফসেটকৃত রেখা থেকে ট্রিম করে সকল জানালার অংশসমূহ ফাঁকা করতে হবে।
এতে চিত্রানুরুপ দেখা যাবে (চিত্র)।
জানালা অংকন
- জানালা অংকনের জন্য Wm লেয়ার কে কারেন্ট লেয়ার করে নিতে হবে।
- আএলুনিয়িয়াম জানালা অংকনের জন্য প্রান্তবিন্দুগুলো ও মধ্যবিন্দুগুলো যোগ করতে হবে।
- এবার 2″ ও 1″ করে চিত্রানুরুপ অফসেট করতে হবে ।
সিড়ি অংকনের জন্য লেয়ার কে কারেন্ট লেয়ার করে নিতে হবে
- সিড়ির জন্য রুমটির তিনদিকের লেয়ার 40″ অফসেট করতে হবে, এই রেখা গুলো ক্লিক করে লেয়ার টুলসের ড্রপ ডাউন ক্লিক করে সিড়ির লেয়ার দিয়ে ক্লিক করতে হবে। তাহলে ওয়াল লেয়ার থেকে সিড়ির লেয়ারে চলে যাবে।
- ধাপ অংকনের জন্য 10″ করে চিত্রের ন্যায় অফসেট করতে হবে ।
- এবার ট্রিম করে ধাপের মাঝের অংশ ফাঁকা করতে হবে।
- এরপর ধাপের মাঝের অংশের তিন দিকে 3″ করে অফসেট করতে হবে ।
- সম্মুখের প্রবেশ পথের জন্য শেষ ধাপ বরাবর রেখা টেনে 5″ করে অফসেট করতে হবে ।
- রেখাদ্বয় কে ধাপের ফাকা অংশের মধ্য বরাবর রেখে বাকী অংশ ট্রিম করতে হবে ।
- পরে বাইরের দেয়ালের সাথে 45 দূরতে চযাফার করতে হবে ।
- এবার কোনাকুনি রেখাটিকে 5″ দেয়াল অফসেট করতে হবে, এবং মার্কার সুরত্ব 0 নিয়ে কোনাগুলো মিলাতে হবে,
- প্রবেশ পথে ধাপ অংকনের জন্য লিভিং রুম থেকে সিঁড়ির কৌণিক রেখা পর্যন্ত যাগে করতে হবে। এই রেখাটিকে 10 করে অফসেট করাতে
- এবার ট্রিম করে ধাপের বাড়তি অংশ কেটে ফেলতে হবে .
- বারান্দার লেয়ার কারেন্ট লেয়ার বারান্দা অংকনের জন্য কিচেন থেকে সিঁড়ি পর্যন্ত যোগ করে 3″ রেলিং অফসেট করতে হবে।
- দরজার লেয়ারকে কারেন্ট লেয়ার করে পূর্বের পর রে নিয়ম অনুযায়ী চিত্রের ন্যায় দুই পাল্লার দরজা অংকন করতে হয়।
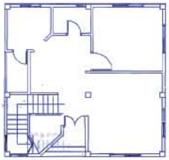
অঙ্কিত প্ল্যানটি চিনুকজন সেখানে। (চিত্র ১.২.১৬ ) ।
টেক্সট বা অক্ষরসমূহ লিখার জন্য,
টেক্সট লেয়ারকে কারেন্ট লেয়ার করে টেক্সটসমূহ লিখতে হবে।
Command: dt 4
Specify start point of text [Justify / Stylo]: ড্রয়িং এরিয়ার যে কোন একটি বিন্দুকে ক্লিক,
Specify Height <>:5,
Specify rotation angle of text <<>:<
- প্রয়োজনীয় টেক্সট লিখে – দুইবার এন্টার করলে কমান্ড থেকে বের হয়ে আসবে)।
সকল লিখা হলে দুইবার ঘন্টার করে করে হবে। পরে প্রয়োজনীয় পক্ষ বা অক্ষর যথাস্থানে মুক্ত করে নিয়ে বসাতে হবে। সফল টেক্সট লিখার প্লেন টি চিত্রানুরুপ দেখা যাবে ।
বাড়ির প্ল্যানে মাপ লিখা
অঙ্কিত প্ল্যানে ডাইমেনশন দেখানোর জন্য
ডাইমেনশন লেয়ার তৈরি করে কারেন্ট লেয়ার করে নিতে হবে। এবার,
- ডাইমেনশন টুলবারের Linear টুল ক্লিক করে গুল্যাপ অন করে কক্ষসমূহের যেখান থেকে যে পর্যন্ত যাপ নিতে হবে সেই দুই দিকের দেয়ালে ক্লিক করতে হবে।
- সব রুমের মাপ Linear ডাইমেনশন-এর সাহায্যে দিয়ে নিতে হবে।
- এবার সব মাপ দেখালে টেক্সট কমান্ডের সাহায্যে মাপসমূহ 11-3×11-3″ এভাবে লিখতে হবে।
- লিখা হলে নিচের চিত্রের (চিত্র-৯.৪.১) ন্যায় দেখাবে।
- এবার ডাইমেনশন লাইনসমূহ ইরেজ করে ফেলতে হবে বা লেয়ার অফ করে রাখতে হবে।
আবাসিকের উপর তলার প্ল্যানটিও নিচ তলার অনুরূপ অঙ্কন করতে হবে। অঙ্কন করা হলে নিচের চিত্রানুরূপ হবে। উপর তলায় সামনের দিকে বেড ও বারান্দার অংশটি ঝুলন্ত (Cantilever) অবস্থায় আছে ।
আরও দেখুনঃ